Objekt Nummer: 251-1502
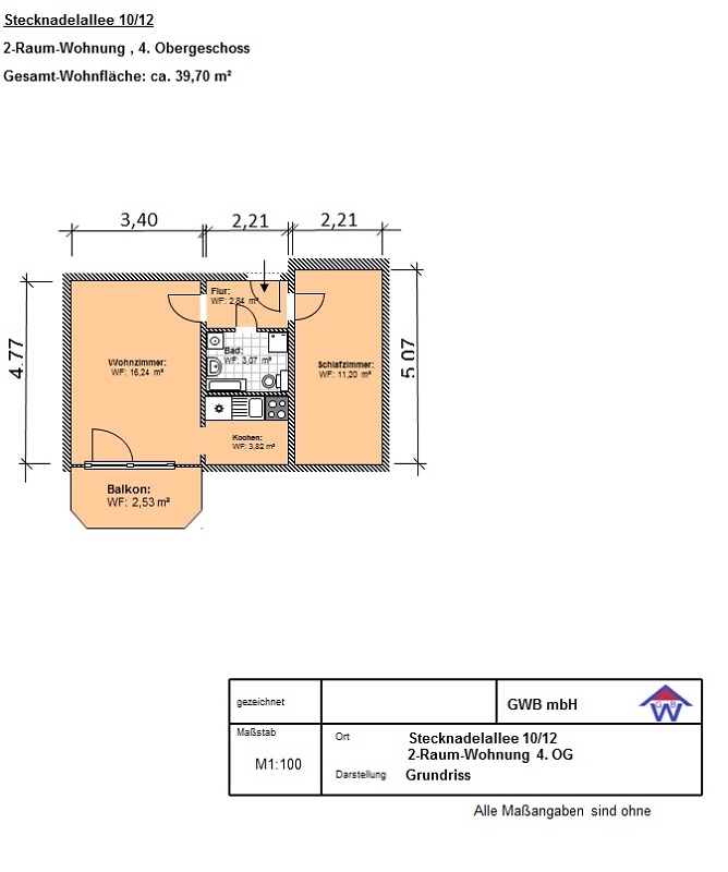
Stecknadelallee 10/12
Altersgerechte 2-Raumwohnung mit Fahrstuhl
Objekt Nummer: 251-1502
Ort:
04668 Grimma
Ortsteil:
Grimma-Süd
Wohnfläche:
39,70 m²
Zimmer:
2
Etage:
4. OG
Verfügbar ab:
nach Vereinbarung
Grundmiete:
270,00 €
Nebenkosten:
145,00 €
Kaution:
810,00 €
Gesamtmiete:
415,00 €
Heizkosten sind in der Gesamtmiete enthalten.
Energieausweis
103,00 kWh/(m²*a)
Energiekennwert:
103,00 kWh/(m²*a)
Ausweisart:
Verbrauchsausweis
Energieträger:
Fernwärme
Heizungsart:
Zentralheizung
Baujahr:
1982
Energieverbrauch enhält Warmwasser.
Objektbeschreibung:
Die 2-Raumwohnung verfügt über einen offenen Balkon. Das innenliegende Bad ist mit einer Dusche sowie einem WM-Anschluss ausgestattet. Zur Wohnung gehört ein Keller. Im Haus kann jeder Mieter den Trockenraum sowie den Fahrradabstellraum nutzen. Zudem stehen kostenlose Parkflächen vor dem Wohnblock zur Verfügung. Die Serviceleistungen, wie die Hausordnung, die Pflege der Außenanlagen und der Winterdienst sind Bestandteil der ausgewiesenen Nebenkosten.
Lagebeschreibung:
Der im Jahre 1982 erbaute Wohnblock ist mit einem Aufzug ausgestattet, umso ein angenehmeres Wohnen zu ermöglichen. Im Haus befindet sich eine Physio und Ergotherapie. Fußläufig ist der "EDEKA" Markt erreichbar. Der Geldautomat der Sparkasse "Am Pulverturm" und die Arztpraxen in der Auenpassage, sind mit dem Bus und auch zu Fuß erreichbar. Die Bushaltestelle "Am Pulverturm" befindet sich in unmittelbarer Nähe des Wohnblockes. Den Bahnhof erreicht man zu Fuß in ca.8 min. Eine Vielzahl von Erholungsmöglichkeiten und Freizeitangeboten finden sie in unmittelbarer Nähe, wie den Muldenradwanderweg oder das Fitnesstudio usw. Grimma verfügt über eine sehr gute Verkehrsanbindung auf Grund der Autobahn A 14 (Halle-Leipzig-Dresden) und der B 107 sowie der Bus und Bahnverbindung Leipzig-Döbeln.
Ansprechpartner
Frau Friedemann
Telefon:
E-Mail:
Sie möchten mehr Informationen zu diesem Objekt? Kontaktieren Sie uns über unser Kontaktformular.



